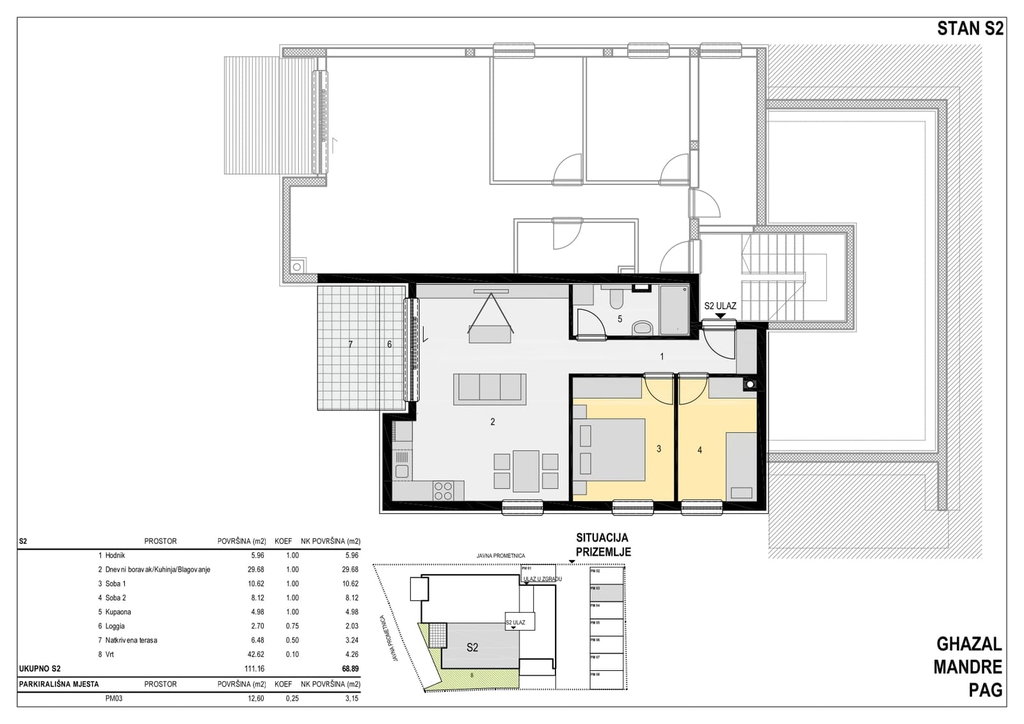
Osnovno
- Grad : Pag
- Bruto površina : 111 m2
- Neto površina : 68 m2
- Površina zemljišta : 600 m2
- Godina izgradnje : 2026
- Broj soba : 3
- Kupaonice : 1
- Broj etaža : 12
- Terasa
- Lođa
- Vrt
- Parking mjesta : 1
- Klima uređaj
- Prvi red do mora
- Novogradnja
- Grijanje : Dizalica topline
Više informacija
Predstavljamo stan u luksuznoj novogradnji prvi red do mora u mjestu Mandre na otoku Pagu. Ovaj stan nalazi se u prizemlju stambene zgrade koju čine osam apartmana. Položaj ovog objekta je tik uz šetnicu, na uistinu jedinstvenoj lokaciji. Stan je orijentiran na jug i ima pogled na otvoreno more i otoke u daljini. Sastoji se od dnevnog boravka s blagovaonicom i kuhinjom, dvije spavaće sobe, kupaonice, loggie, natkrivene terase i vrta. Ističe se velikim staklenim stijenama koje osiguravaju obilje prirodnog svjetla tijekom cijelog dana, te na taj način stvaraju interakciju s predivnim mediteranskim krajolikom uz šum valova. Od opreme izdavajmo jedan od najboljih multi-split sistema klima uređaja, podno grijanje s wifi upravljanjem, ventiliranu fasadu, izvrsnu toplinsku i zvučnu izolaciju, električne rolete, te videonadzor i videoportofon. Moderan arhitektonski dizajn, čiste linije i kvalitetni materijali čine ovaj prostor idealnim za luksuzno stanovanje kao i za vrhunsku investiciju. Karakteristike nekretnine: - luksuzna novogradnja - atraktivna lokacija uz samu šetnicu - pogled na more - najmodernija oprema - velike staklene stijene - iznimno svijetao i prozračan prostor - blizina plaža i svih sadržaja - energetski certifikat A+ Stan se prodaje nenamješten. Uz stan dolazi jedno parkirno mjesta, a postoji mogućnost kupnje dodatnog parkirnog mjesta u susjedstvu ili korištenje javnog parkinga. Za sva dodatna pitanja i razgled nekretnine stojimo Vam na raspolaganju. U slučaju posla posredovanja naše agencije postoji obveza plaćanja agencijske provizije. Za ovu nekretninu je kontakt: Amina, +385 98 180 8006
Lokacija
Nekretnine u blizini
Pogledajte više-
- Prodaja
- Stanovi
- Pag
Pag, Mandre, ekskluzivna novogradnja prvi red do mora, NKP 92,42 m2, stan S8
92 m2
581.321 €
-
- Prodaja
- Stanovi
- Pag
Pag, Mandre, ekskluzivna novogradnja prvi red do mora, NKP 85,85 m2, stan S1
85 m2
539.996 €
-
- Prodaja
- Stanovi
- Pag
Pag, Mandre, luksuzna novogradnja blizu mora, stan S3, neto 87,60 m2
87 m2
358.832 €