Osnovno
- Grad : Novi Zagreb - Istok
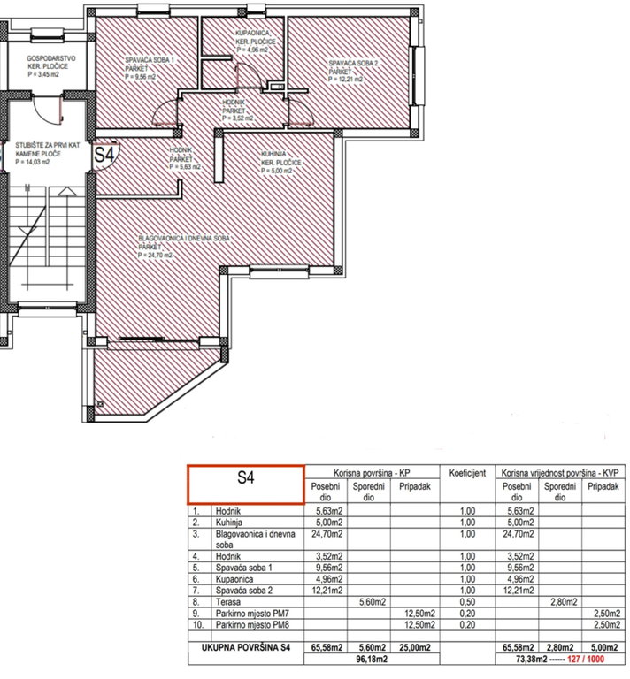
- Bruto površina : 73.38 m2
- Neto površina : 73.38 m2
- Godina izgradnje : 2026
- Broj soba : 3
- Kupaonice : 1
- Broj etaža : 14
- Klima uređaj
- Novogradnja
- Grijanje : Centralno etažno plinsko
Više informacija
Prodaje se moderan i kvalitetno građen stan smješten na 1. katu manje stambene zgrade u Gornjem Stupniku, ukupne površine 73,38 m2. Raspored stana: - dvije spavaće sobe - kuhinja - hodnik - dnevni boravak i blagovaonica s izlazom na terasu - natkriveni balkon Stan će imati podno grijanje u svim prostorijama te mu pripadaju 2 parkirna mjesta. Lokacija nudi sve što je potrebno za ugodan svakodnevni život. U neposrednoj blizini nalaze se pošta, Konzum koji je udaljen svega 100 metara, općina i ljekarna, dok se autobusna stanica nalazi direktno preko puta zgrade. Sve ključne usluge i sadržaji dostupni su doslovno na nekoliko koraka, što ovu lokaciju čini iznimno praktičnom i poželjnom za svakodnevno funkcioniranje. Radi se o novogradnji modernog standarda, a završetak gradnje planiran je krajem 2026. godine. U slučaju posla posredovanja naše agencije postoji obveza plaćanja agencijske provizije. Za sva dodatna pitanja i razgled nekretnine stojimo Vam na raspolaganju. Za ovu nekretninu je kontakt: Vito, +385 91 622 7421
Lokacija
Nekretnine u blizini
Pogledajte više-
- Prodaja
- Stanovi
- Novi Zagreb - Istok
Zagreb, Gornji stupnik, stan s dvije spavaće sobe na drugom katu, 47.47 m²
47.47 m2
156.651 €
-
- Prodaja
- Stanovi
- Novi Zagreb - Istok
Zagreb, Gornji stupnik, stan s dvije spavaće sobe na prvom katu, 47.47 m²
47.47 m2
156.651 €
-
- Prodaja
- Stanovi
- Novi Zagreb - Istok
Zagreb, Gornji stupnik, stan s dvije spavaće sobe u prizemlju, 53.72 m²
53.72 m2
175.956 €