General
- City : Novi Zagreb - Istok
- Gross area : 92 m2
- Net area : 92 m2
- Year of construction : 2026
- Number of rooms : 3
- Bathrooms : 1
- Number of floors : 15
- Terrace
- Balcony
- Parking places
- Air conditioner
- New construction
- Heating : Central gas heating
More information
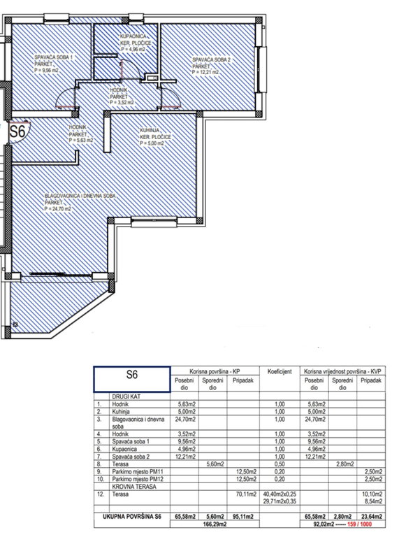
A modern and well-built apartment for sale, located on the 2nd floor of a smaller residential building in Gornji Stupnik, with a total area of 92 m2, featuring a roof terrace of 70 m2. Layout of the apartment: - two bedrooms - kitchen - hallway - living and dining room with access to the terrace - covered balcony - roof terrace The apartment will have underfloor heating in all rooms and comes with 2 parking spaces. The location offers everything needed for comfortable everyday living. Nearby, there is a post office, a Konzum supermarket just 100 meters away, the municipality office, and a pharmacy, while the bus stop is located directly across the street. All essential services and amenities are just a few steps away, making this location extremely practical and desirable. This is a new development built to modern standards, with completion planned for the end of 2026. In the case of an agency-mediated transaction, there is an obligation to pay the agency commission. For any additional questions or to arrange a viewing, we are at your disposal. Contact for this property: Vito, +385 91 622 7421
Location
Real estate nearby
See more-
- Sale
- Apartments
- Novi Zagreb - Istok
Zagreb, Gornji stupnik, stan s dvije spavaće sobe na drugom katu, 47.47 m²
47.47 m2
156.651 €
-
- Sale
- Apartments
- Novi Zagreb - Istok
Zagreb, Gornji stupnik, stan s dvije spavaće sobe na prvom katu, 47.47 m²
47.47 m2
156.651 €
-
- Sale
- Apartments
- Novi Zagreb - Istok
Zagreb, Gornji stupnik, stan s dvije spavaće sobe u prizemlju, 53.72 m²
53.72 m2
175.956 €