General
- City : Novi Zagreb - Istok
- Gross area : 162 m2
- Net area : 162 m2
- Year of construction : 2026
- Number of rooms : 4
- Bathrooms : 2
- WC : 1
- Number of floors : 16
- Terrace
- Loggia
- Garage
- Air conditioner
- New construction
- Heating : The heat pump
More information
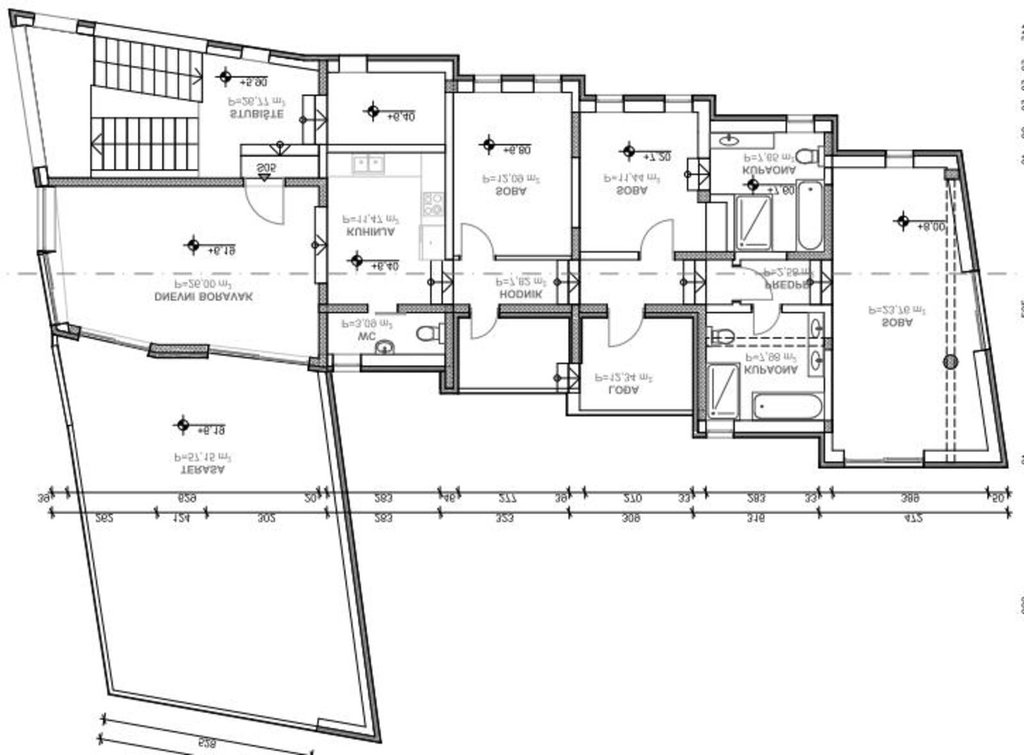
I present to you the exclusive project Novogradnja Dedići, a combination of top architecture, premium materials and modern technologies, located in one of the most prestigious areas under Medvednica. The project consists of 4 floors and a total of 5 luxury residential units, and every detail is built to the highest standards of quality and safety. Construction quality and equipment: This new building offers top execution and the most modern systems: - reinforced concrete structure with high anti-earthquake standards - underfloor heating throughout the apartment via heat pump - smart home system for controlling lighting, blinds, heating and security functions - ALU carpentry with triple-layer insulated glass - electric blinds - sanitary ware and equipment from first-class manufacturers - exceptional energy efficiency – A rating Carefully designed exterior and interior architecture, in cooperation with a professional design team, gives this building a dose of elegance and refinement visible in every corner. This luxury penthouse truly makes a difference because the space is full of natural light, with open views of the nature below Medvednica and a view of Kulmer’s Palace, giving it special charm and prestige. Layout and floor plan: - entrance: 21.19 m2 - hallway: 9 m2 - bedroom 1: 12.09 m2 - bedroom 2: 11.20 m2 - master bedroom: 23.85 m2 - bathroom 1: 7.65 m2 - bathroom 2: 7.98 m2 - toilet: 3.09 m2 - living room + dining room: 26 m2 - kitchen: 17.20 m2 - loggia 1: 3.90 m2 (calculated) - loggia 2: 5.44 m2 (calculated) - terrace: 14.29 m2 (calculated) Total calculated area: 162.88 m2 With the apartment, it is mandatory to buy two garages each €25,000 The apartment also includes a storage room, which further increases functionality. This is one of the most sought-after locations in Zagreb, located near the British International School, a high school, an elementary school and a kindergarten. Nearby are parks and green areas, the Šestine Church, as well as various shops and cafés. It is important to emphasize that the city center is only 12 minutes by car from Britanac, which makes this location perfect for those who want the peace of nature but also the proximity of the city center. For any additional questions and viewing of the property, we are at your disposal. In case of an agency brokerage deal, there is an obligation to pay the agency commission. Contact for this property: Vito, +385 91 622 7421
Location
Real estate nearby
See more-
- Sale
- Apartments
- Novi Zagreb - Istok
Zagreb, Dedići, 3s u modernoj novogradnji na 2.katu, 102.40 m²
102.4 m2
394.240 €
-
- Sale
- Apartments
- Novi Zagreb - Istok
Zagreb, Trešnjevka, 4s stan na vrhunskoj lokaciji, 4. kat, garaža, 135 m²
135 m2
499.000 €
-
- Sale
- Apartments
- Novi Zagreb - Istok
Zagreb, Trešnjevka, 4s stan 103m2 za prodaju
103 m2
420.000 €