Allgemeines
- Stadt : Duga Resa
- Bruttofläche : 86.43 m2
- Nettofläche : 86.43 m2
- Baujahr : 2026
- Anzahl der Räume : 2
- Badezimmer : 1
- Anzahl der Etagen : 15
- Loggia
- Garage
- Parkplätze
- Klimaanlage
- Neubau
Mehr Informationen
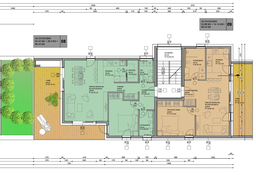
Wohnung zum Verkauf in Duga Resa mit einem Schlafzimmer im 2. Stock. Die Wohnung hat 86,43 m2, einen Abstellraum und eine große Terrasse. Beschreibung: Ich präsentiere Ihnen eine Wohnung in einer luxuriösen Neubauanlage, die auf einem großzügigen Grundstück von 2.100 m2 gebaut wird, in einem modernen und hochwertigen Projekt, bei dem jedes Detail sorgfältig durchdacht ist. Das Gebäude zeichnet sich durch hochwertige Materialien, moderne Architektur und eine ausgezeichnete Raumorganisation aus. Ideal für diejenigen, die eine Kombination aus Eleganz, Komfort und Praktikabilität suchen. Die Wohnung befindet sich im 2. Stock. Raumaufteilung der Wohnung: - Eingangsflur - ein Schlafzimmer - Küche - Wohnzimmer mit Essbereich - große Terrasse Besonderheiten des Projekts: - modern geplantes Gebäude höchster Standards - Premium-Materialien beim Bau verwendet - ausgezeichnete Wärme- und Schalldämmung - privater Park für Kinder innerhalb - Abstellraum im Keller Zusätzliche Informationen: - zum Apartment muss ein Garagenplatz oder ein Außenparkplatz gekauft werden - es besteht die Möglichkeit, gegen Aufpreis eine Dachterrasse zu machen, die ideal für einen Jacuzzi, eine Sommerküche und eine Lounge-Zone ist Diese Wohnung stellt eine außergewöhnliche Gelegenheit dar für diejenigen, die modernes Wohnen hohen Standards in einer komfortablen und sicheren Umgebung suchen. Für alle zusätzlichen Fragen und Besichtigung der Immobilie stehen wir Ihnen zur Verfügung. Im Falle eines Vermittlungsauftrags durch unsere Agentur besteht die Verpflichtung zur Zahlung einer Vermittlungsprovision. Für diese Immobilie ist der Kontakt: Vito, +385 91 622 7421
Standort
Immobilien in der Nähe
Mehr sehen-
- Verkauf
- Wohnungen
- Duga Resa
Karlovačka, Duga Resa, Zweizimmerwohnung in moderner Neubau im 2. Stock, 68 m²
68 m2
204.000 €
-
- Verkauf
- Wohnungen
- Duga Resa
Karlovačka, Duga Resa, Zweizimmerwohnung in moderner Neubau mit Terrasse im 2. Stock, 86,43 m²
86.43 m2
259.290 €
-
- Verkauf
- Wohnungen
- Duga Resa
Karlovačka, Duga Resa, Zweizimmerwohnung in moderner Neubau mit Terrasse, 68 m²
68 m2
204.000 €